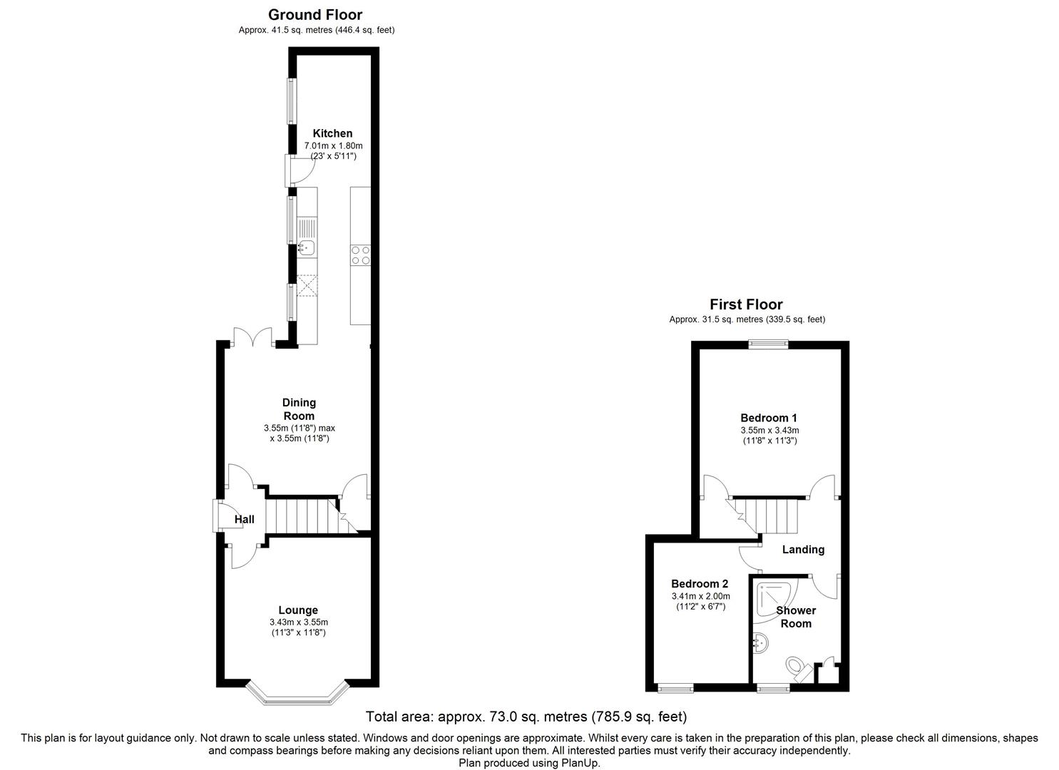
Floor plan

Derwent Street - Student House - 26/27

6 Derwent Street, Lincoln LN1 1SL

  • House - Terraced
  • Available from 30/06/2026
Bedrooms 2
Bathrooms 1
Receptions 2
Floor area 786sqft

£155

per week

  • Two double rooms
  • Wall Mounted TV
  • Contemporary kitchen
  • West End location
  • Dishwasher included
  • View the virtual tour
  • Deposit only £200 per person!
  • Price displayed is per person based on 2 tenants renting the property
  • Council Tax Band A
  • Available for 26/27

Modern two bedroom accommodation in a great location close to Lincoln University!

Spacious lounge, dining room & kitchen to the ground floor with two bedrooms and shower room on the first floor. Rear courtyard garden.

Up to 2 parking permits available through City of Lincoln Council permit scheme for a fee. Gas central heating.
*Price displayed is as per person per week*

The deposit payable on the first day of your tenancy is just **£200.00** per person along with the first four weeks rent, after this the rent can be paid in instalments that coincide with your student loan.

The total rent due for the property will increase by £28.99 per week for any non-students (rental shares can be apportioned per tenant, meaning one or more tenants can contribute to this).

Don't miss out on this great property. Contact our friendly team at Cloud Lettings today to arrange your viewing or book a slot online for a time convenient to you!

See downloadable brochure for more details.

Call - 01522 802020
email - [email protected]
WhatsApp - 07908 557770
The property is affected by known rights or restrictions; open the brochure for further details.

Tenancy Deposit Scheme Logo The Property Ombudsman Logo City of Lincoln Council Trusted Landlord Scheme Logo TSI Approved Code Logo Arla Propertymark Logo Cyber Essentials Logo